
Eignet sich vor allem für den Einsatz bei Passivhäusern und Minergie-Bauten. Das System ist durch unseren Systemgeber Vorzertifiziert. Durch die spezielle Anordnung der Dichtungs-Ebenen ist es hinsichtlich der Wärmedämmung optimal an hoch effiziente Energie sparende Bauten angepasst.
Sirius -D ist ein TOP-Fenster siehe www.topfenster.ch
Die hochwertigen Konstruktionen aus Holz-Aluminium erreichen ausgezeichnete Werte im Bereich Wärmeschutz.
Bei einer Verglasung mit Ug 0,7 w/m²k wird ein maximaler Wärmedämmwert über die ganze Konstruktion von <0.97 w/m²k erreicht.
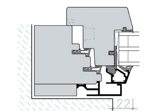
Bis zu 3 Dichtungsebenen möglich
Systemtyp: Sirius D


Technische Daten , Sirius D
Rahmenholz: 64 mm oder 74 mm Stärke
Flügelholz: 64mm oder 74 mm Stärke
Grundprofil-Montage geschraubt
Flexo-Wetterschenkel
Dichtungsprofile in EDPM-Qualität
Rollstuhlgängige Schwelle
Öffnungsarten
Dreh-Flügel
Dreh/Kipp-Flügel
Tests und Prüfungen
Luftdurchlässigkeit (EN 1026)
Schlagregendichtheit (EN 1027)
Luftschalldämmung (EN ISO 140-3)
Systemvorprüfung Minergie® -und Minergie P Modul-Fenster